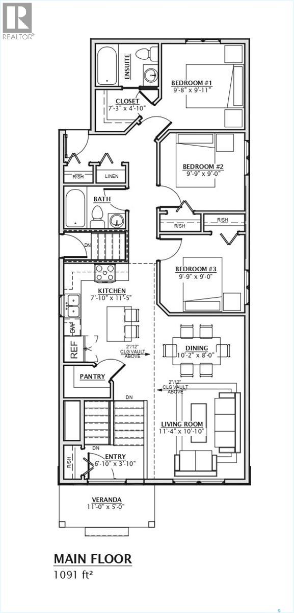
*NOVEMBER PROMO: APPLIANCES & AC UNIT WILL BE INCLUDED WITH THE NEXT 5 HOMES!! NOW ACCEPTING 5% DEPOSIT! Welcome to The Aspen Collection by Decora Homes, located in the highly sought-after neighbourhood of Aspen Ridge. The Phoenix model is a Bi-Level home offering 1,091 sq ft of open-concept living space with 3 bedrooms and 2 bathrooms on the main level, featuring luxury vinyl plank flooring throughout and quartz counter tops in the main kitchen. The primary bedroom includes a walk-in closet & 4-piece ensuite bathroom. Additional features include xeriscaped front landscaping, a corner lot, a concrete walkway from the sidewalk to the front door, separate side entry, and a 20x20 concrete parking pad with back alley access. Now available for Pre-Sale, with estimated completion in Spring/Summer 2026. Buyers can choose from three thoughtfully curated colour palettes: Harmony, Tranquil, or Horizon. This lot also offers the option to add the "Malibu Detached Garage," which features a ONE BEDROOM LEGAL RENTAL SUITE "LOFT" above the double detached garage. Add-on and upgrade options are available. This home can accommodate a finished basement suite upgrade option too. Please contact your Realtor today for more information and add-on pricing! (id:4069)
Address
107 Stehwien Street
List Price
$490,000
Property Type
Single Family
Type of Dwelling
Single Family
Style of Home
Bi-level
Transaction Type
Sale
Area
Saskatchewan
Sub-Area
Saskatoon
Bedrooms
3
Bathrooms
2
Floor Area
1,091 Sq. Ft.
Lot Size
30x120 Sq. Ft.
Year Built
2026
MLS® Number
SK022544
Listing Brokerage
Realty Executives Saskatoon
Basement Area
Full (Unfinished)
Postal Code
S7W1M9
Features
Rectangular, Sump Pump











..........................................................................................................................................................................